• info@kompas.co.uk
  • 020 8590 0002

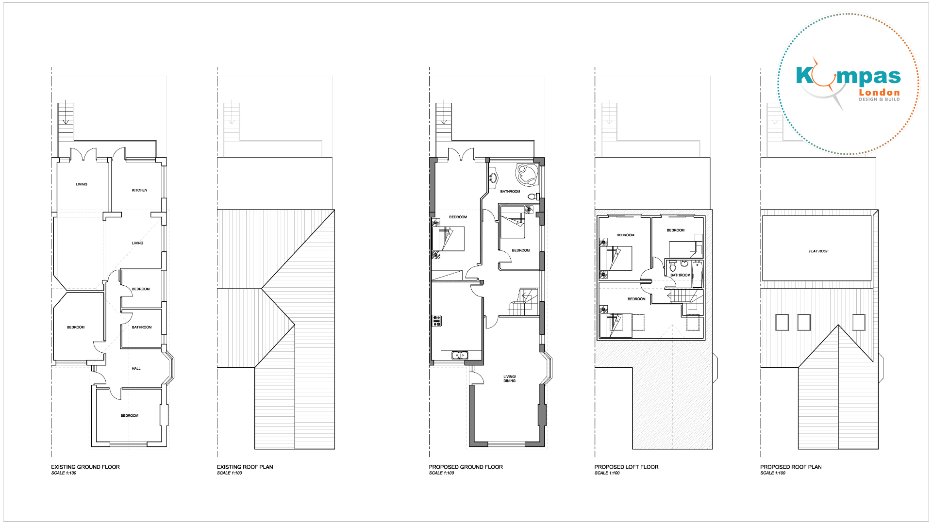
Project Overview

Approved by the Havering CouncilCertificate of Lawfulness for conversion of roof space to habitable use to include a rear dormer, 3 No. front roof lights, and conversion of roof from hip to gable end at 61 Grey Towers Avenue Hornchurch


The Local Planning Authority has acted positively and proactively in determining this application by assessing the proposal against all material considerations, including planning policies and any representations that may have been received and subsequently determining to grant planning permission in accordance with the presumption in favour of sustainable development, as set out within the National Planning Policy Framework.

Project Detail

  • Client Name:
    N/A
  • Client Company Name:
    N/A
  • Project Start Date:
    2022-01-25
  • Project End Date:
    2022-03-22
  • Client Comment:
    N/A

Quick Contact

Recent Portfolio

See all our works that we do for our clients

Do you need architectural or construction services ?