• info@kompas.co.uk
  • 020 8590 0002

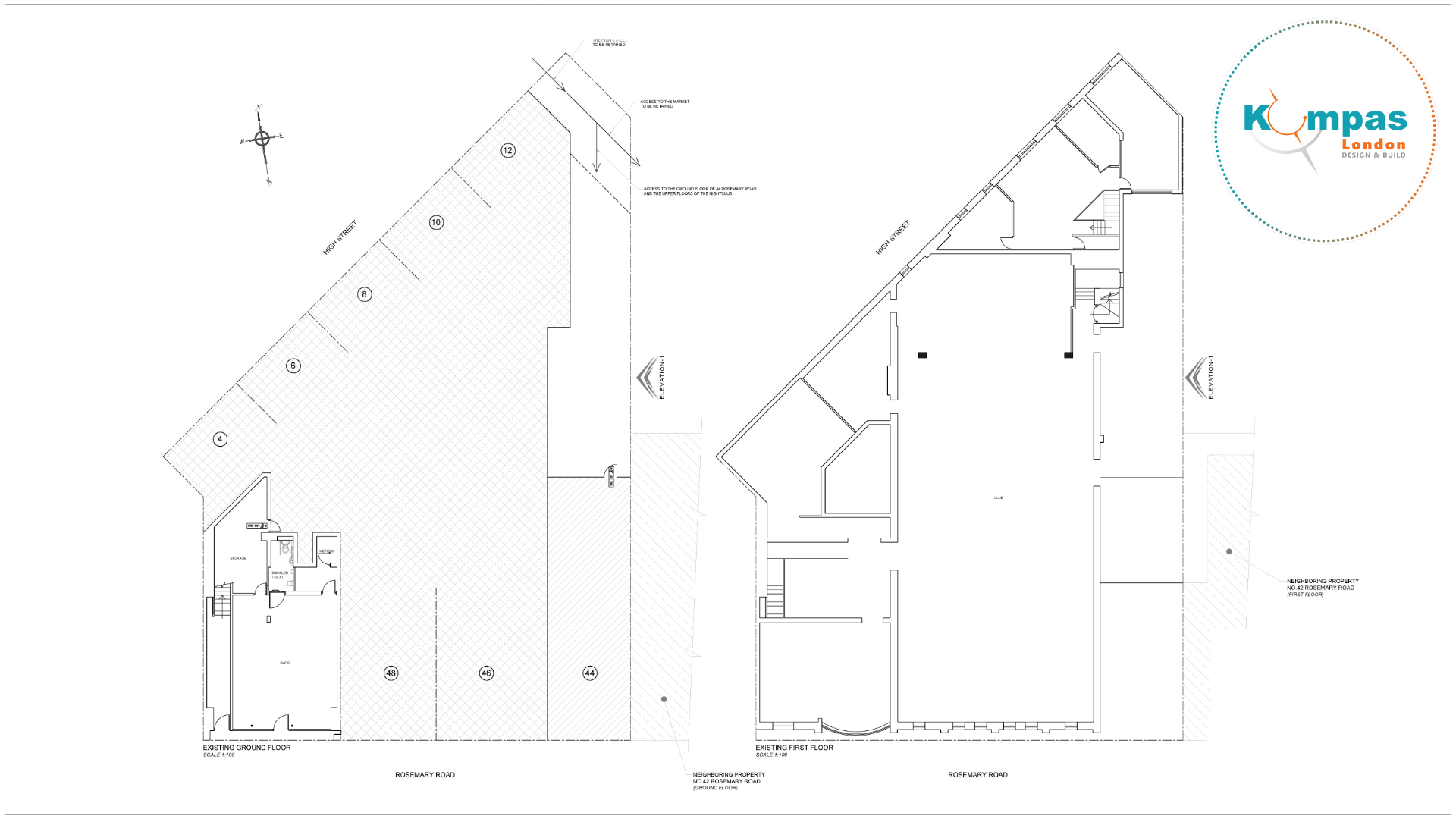
Project Overview

Conversion of existing first and second floors and erection of a third floor and extensions to create 16 self contained flats at 50 Rosemary Road Clacton On Sea Essex CO15 1PB

Clacton-On-Sea train Station is within 6 minutes walk of the site and within 5 minutes by public transport. There are also convenient bus stops in the vicinity of the site that facilitate access to the neighborhood. The site is located in a good Public Transport Accessibility Level area, well established public amenity spaces are also considerable in the area. The High Street and Rosemary Road are characterized by their commercial use on the Ground Floor level with residential/commercial on the First Floors and above.

The site is located on the Rosemary Road, and adjoins the Clacton-on-Sea town centre. The buildings surrounding the site on Rosemary Road and High Street are predominantly two and three storey buildings; comprising of retail use on the ground level and offices/flats on the upper floor levels. The design is specific to the scheme, and will feel like a place with a distinctive character. The area being created will become a key driver for economic prosperity.

The buildings surrounding the site are traditional terraced brick buildings, some of them have now been pebble dash rendered and painted over. The development responds to and reinforces locally distinctive patterns of development.

The site is characterized by the provision of central communal roof gardens on the first and second floors and individual amenity spaces located to the rear of the proposed flats on the third floor of the development. The existing windows on the High street and Rosemary Road are reflected in the proposed new floors to keep with the existing pattern of windows and form of the building. Care has been taken to avoid directly facing the neighboring windows.

The site is outside of the conservation area.

The colour of the brick materials to be used on the new building will be selected to match the existing building; this means the proposed extensions of the building will be in harmony with the older building facing the Rosemary Road and High Street.

Project Detail

  • Client Name:
    N/A
  • Client Company Name:
    Rumours Night Club
  • Project Start Date:
    2019-05-01
  • Project End Date:
    2019-08-01
  • Client Comment:
    N/A

Quick Contact

Recent Portfolio

See all our works that we do for our clients

Do you need architectural or construction services ?