info@kompas.co.uk
020 8590 0002
Home
About
Team
Page
FAQ
Complaints
Service
Portfolio
News
Contact
25 Osborne Road
Project Overview
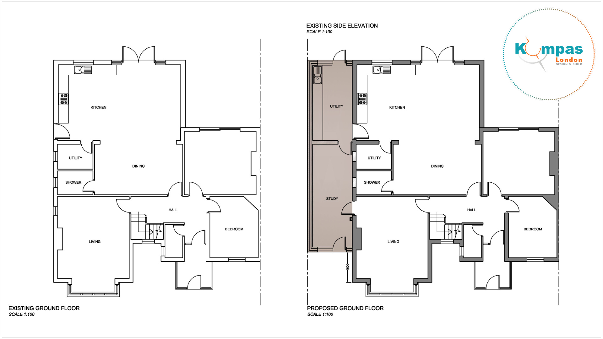
Proposed Single-Storey Side Extension at 25 Osborne Road Hornchurch RM11 1EX
Project Detail
Client Name:
N/A
Client Company Name:
N/A
Project Start Date:
2018-03-31
Project End Date:
2018-05-31
Client Comment:
N/A
Quick Contact
Submit
Recent Portfolio
See all our works that we do for our clients
1 Burnett Road
100 Manor Road
112 Hillside Gardens
131 Wennington Road
16-18 Magpie Hall Road
18-20 Alamein Avenue
20 Conway Crescent
25 Osborne Road
26 Upper Wickham Lane
35 Empress Avenue
377 Eastern Avenue
38 Breamore Road
387 Staines Road
50 Rosemary Road
52 Herbert Road
61 Grey Towers Avenue
66 - 68 New Barn Street
Rosewood, Manor Road
Do you need architectural or construction services ?
Contact Us