• info@kompas.co.uk
  • 020 8590 0002

Project Overview

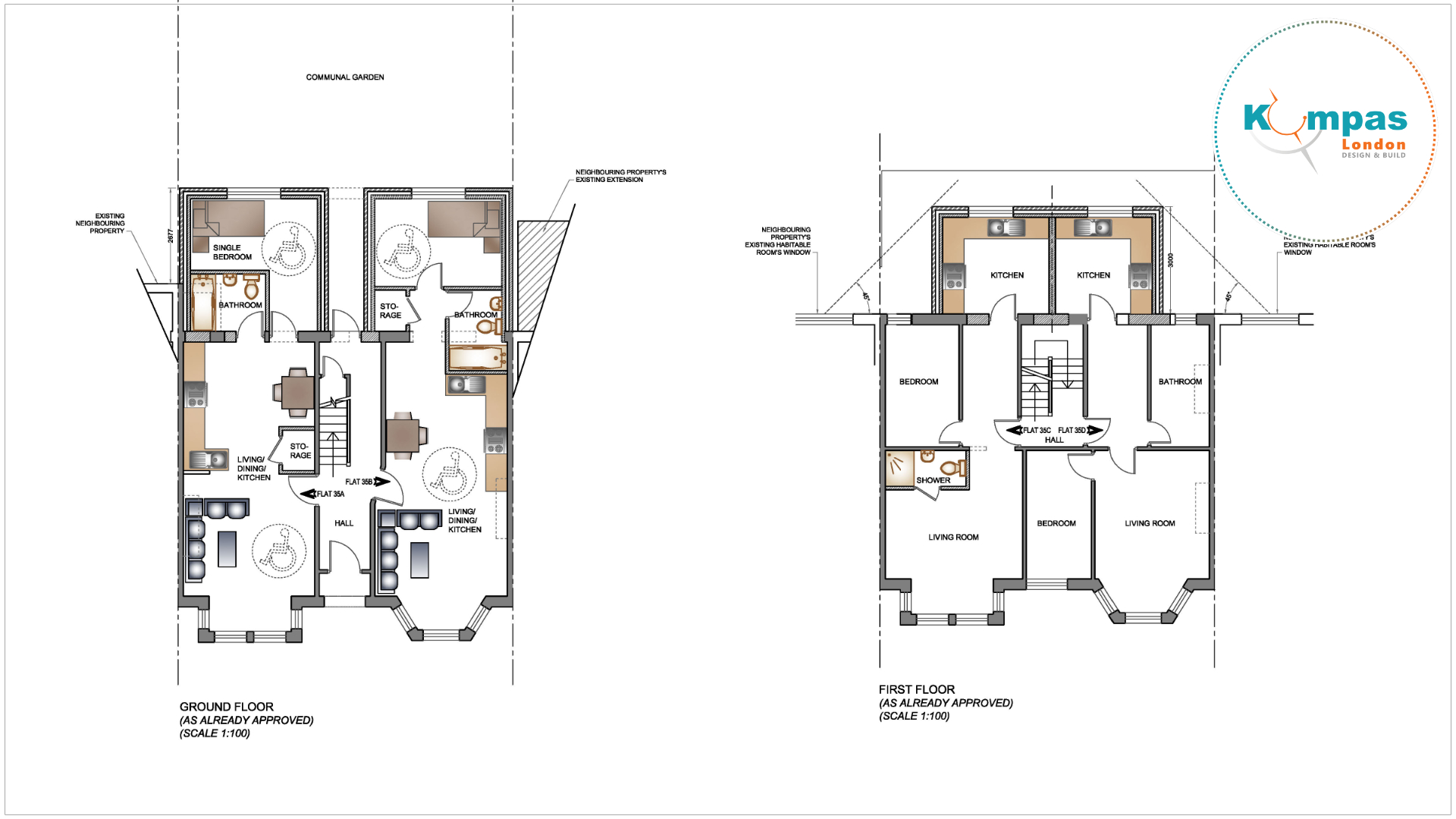
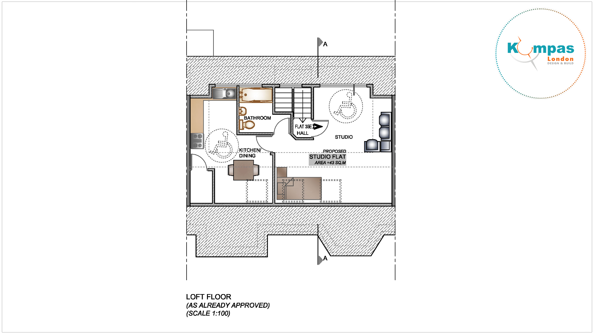
Approved by the Redbridge CouncilLoft conversion with rear dormer and three front rooflights to create 1x one bedroom self-contained flat at 35, Empress Avenue, Cranbrook, Ilford


The proposal is for a loft conversion with a rear dormer to provide a self-contained one-bedroom two-person flat, the need of which is in accordance with The London Plan (2021) and the Redbridge Local Plan (2018) that encourage the housing growth.

The property at 35 Empress Avenue is a terraced property with a tiled pitched roof and brick finish. It has been historically converted into 4 self-contained flats, two on the ground floor, and two on the first floor.

The area surrounding the site is mostly residential in nature and the neighbouring properties consist mainly of residential houses and flats.

The Valentines Park and the Wanstead Park are within walking distance.

The site in question is connected to Cranbrook Road (A123) on its North-East via The Drive.

All the surrounding roads in the vicinity of the site include footways, street lighting and appropriate crossing facilities. These facilities connect the site very well to the surrounding public transport infra-structure, including the bus stops Northbrook Road and Cranbrook Road (3-minute walk distance). The Northbrook Road is served by the numbers 123, 128, 145, 150, 167, 179, 296, 366, 396, 462, 667, 677, 679, whereas the Cranbrook Road is served by 145 and 366. Furthermore, the nearest rail station is Ilford Train Station and is just a 10-minute walk distance from the site.

The Public Transport Accessibility Level (PTAL) is used by TfL to produce a consistent London wide public transport access mapping facility to help boroughs with locational planning and assessment of appropriate parking provision by measuring broad public transport accessibility levels. The site has a PTAL rating of 5 where 6 is the highest (best) and 0 is the lowest (worst). Details of the PTAL analysis of the Site can be found below.

In conclusion, the site is easily accessible by various modes of transport including on-foot, by bicycle and public transport.

It is considered that the proposal will integrate well with the existing pattern of development and surrounding area and that the proposal will cause no reduction in residential amenity for the adjacent occupiers in terms of loss of light, overlooking or noise.


The Local Planning Authority has acted positively and proactively in determining this application by assessing the proposal against all material considerations, including planning policies and any representations that may have been received and subsequently determining to grant planning permission in accordance with the presumption in favour of sustainable development, as set out within the National Planning Policy Framework.

Project Detail

  • Client Name:
    N/A
  • Client Company Name:
    N/A
  • Project Start Date:
    2022-03-06
  • Project End Date:
    2022-05-06
  • Client Comment:
    N/A

Quick Contact

Recent Portfolio

See all our works that we do for our clients

Do you need architectural or construction services ?